- Woonoppervlakte
- Circa 102 m²
- Perceeloppervlakte
- Circa 340 m²
- Bouwjaar
- Gebouwd in 1984
- Aantal kamers
- 4 kamers (3 slaapkamers)
Sommige huizen hebben het gewoon in zich. Dit vrijstaande huis in Didam is er zo eentje. De basis klopt: fijne indeling, lekker veel licht, vloerverwarming (doei koude voeten), een moderne keuken, drie slaapkamers, een flinke garage met zonnepanelen én een mooie tuin op een perceel van 340 m².
En nee – het is nog geen strak gestuct Pinterest-paleis. Maar juist dat maakt het zo interessant. Zie het als een huis met potentie én een eerlijke prijs. Voor € 400.000 heb je hier een solide basis om je eigen stempel op te drukken. Geen gekke gekte, wel een huis waar je op slag ideeën van krijgt.
De keuken is al helemaal van nu: modern en fris, klaar voor je kookkunsten of je favoriete thuisbezorging. De woonkamer is licht en ruim. Boven vind je drie slaapkamers en een badkamer die prima functioneert, maar misschien wel op je wensenlijstje komt voor een make-over.
De garage is groot genoeg voor je auto, je fietsen, je klusprojecten en dan nog wat. En die 6 zonnepanelen op het dak? Die zorgen dat je energierekening zich koest houdt.
Buiten is er volop ruimte voor groen, gezelligheid en zonnestralen. Zin in een eigen moestuin? Een trampoline? Een hangmat? Het kan allemaal.
Nog even op een rijtje:
* Vrijstaand huis op 340 m² eigen grond
* 101,5 m² woonoppervlak
* Moderne keuken, lichte woonkamer
* 3 slaapkamers, badkamer met potentie
* Grote garage + 6 zonnepanelen
* Rustige buurt met alles dichtbij: supermarkt, bakker, Kruidvat, HEMA, horeca
* Energielabel C
Kortom, geen poeha, geen gladde verkooppraat. Gewoon een fijn huis met een mooie toekomst. Ben jij degene die er iets prachtigs van maakt?
Goed om te weten: onze opdrachtgever heeft hier niet gewoond. Vandaar dat de clausule 'as is, where is' wordt gebruikt.
Wacht niet te lang en bel snel voor een persoonlijke rondleiding. Zie ook de speciale website die we voor dit huis hebben laten maken (op onze eigen site).
Graag tot gauw!
Birgit en Maurice Beckers
Overdracht
- Vraagprijs
- € 400.000 k.k.
- Status
- Verkocht
Bouw
- Object type
- Eengezinswoning, vrijstaande woning
- Soort bouw
- Bestaande bouw
- Bouwjaar
- 1984
- Soort dak
- Zadeldak bedekt met pannen
Oppervlakte en inhoud
- Woonoppervlakte
- 102 m²
- Perceeloppervlakte
- 340 m²
- Inhoud
- 402 m³
- Overige inpandige ruimte
- 7 m²
- Externe bergruimte
- 27 m²
- Gebouwgeb. buitenruimte
- 21 m²
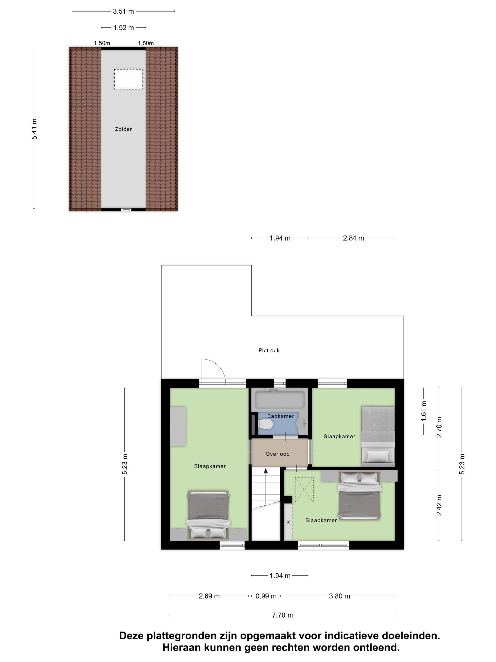
Indeling
- Aantal kamers
- 4 kamers (3 slaapkamers)
- Aantal badkamers
- 1 badkamer en 2 aparte toiletten
- Badkamervoorzieningen
- Ligbad, toilet, wastafelmeubel
- Voorzieningen
- Mechanische ventilatie, rolluiken, schuifpui, glasvezel kabel, zonnepanelen, natuurlijke ventilatie
Energie
- Energielabel
- C
- Energielabel registratie
- 08-10-2017
- Isolatie
- Dakisolatie, muurisolatie, vloerisolatie, dubbel glas
- Verwarming
- Gedeeltelijke vloerverwarming, CV-ketel
Buitenruimte
- Ligging
- Aan rustige weg, in woonwijk
- Tuin
- Achtertuin, voortuin, zonneterras
- Afmetingen achtertuin
- 90 m² (10 meter diep en 9 meter breed)
- ligging tuin
- Gelegen op het oosten en bereikbaar via achterom
Parkeergelegenheid
- Soort parkeergelegenheid
- Op eigen terrein
Energieverbruik in Didam
Energielabel deze woning
Energielabel C
Publicatie energielabel: 08-10-2017
Stroomverbruik per jaar
(Gemiddelde vrijstaande woning in Didam)
Gasverbruik per jaar
(Gemiddelde vrijstaande woning in Didam)
* Cijfers zijn afkomstig van het CBS en bedoeld als indicatie en kunnen verschillen voor deze woning
Indicatie hypotheeklasten
Eigen inleg:
Spaargeld / overwaarde
Rente:
Laagste 10-jaars rente
Laagste 10-jaars rente
2,76% - Centraal Beheer Groen... - NHG
2,98% - Centraal Beheer Groen... - 80%
Laagste 20-jaars rente
3,19% - Centraal Beheer Groen... - NHG
3,31% - Centraal Beheer Groen... - 80%
Laagste 30-jaars rente
3,34% - Centraal Beheer Groen... - NHG
3,47% - Centraal Beheer Groen... - 80%
Hypotheek:
Bruto maandlasten: € 0 p/m
Netto maandlasten: € 0 p/m
Hoe berekenen we dit?
Het rentepercentage is gebaseerd op de laagste 10-jaars vaste rente voor één hypotheekdeel. De vermelde rente (2.76% met NHG) is gecontroleerd op 09-07-2025. Deze berekening is gebaseerd op een annuïteitenhypotheek die volledig wordt afgelost, waarbij de maandlasten gedurende de gehele looptijd gelijk blijven. De werkelijke rente en netto maandlasten kunnen variëren, afhankelijk van uw persoonlijke situatie en de hypotheekverstrekker. Raadpleeg een financieel adviseur voor een nauwkeurige berekening en advies. Aan deze berekening kunnen geen rechten worden ontleend; het dient enkel als indicatie.
Documentatie
Kadastrale kaart
Leefomgeving
Plattegronden PDF
WOZ waarderapport
BAG uittreksel
Brochure
Bouwtekening-1
Bouwtekening-2
Bouwtekening-garage
Energielabel
Funderingsrapport
Lekdetectierapport
Meetrapport
Verkoopprocedure
Bekijk onze website
Bezichtiging
Bod uitbrengen
Waardebepaling
Zoekopdracht
Alles downloaden
Zonnegrenzen bekijken
Op de kaart
Inwoners in Didam
Cijfers voor postcodegebied 6942
- Totaal aantal inwoners
- 12220 inwoners
- Mannen
- 49%
- Vrouwen
- 51%
Inwoners in Didam
Cijfers voor postcodegebied 6942
- tot 15 jaar
- 14%
- 15 tot 25 jaar
- 12%
- 25 tot 35 jaar
- 21%
- 45 tot 65 jaar
- 31%
- 65 en ouder
- 23%
Huishoudens in Didam
Cijfers voor postcodegebied 6942
- Eenpersoons zonder kinderen
- 29%
- Meerpersoons zonder kinderen
- 35%
- Huishoudens zonder kinderen
- 64%
Huishoudens in Didam
Cijfers voor postcodegebied 6942
- Huishoudens met één kind
- 6%
- Huishoudens met meerdere kinderen
- 30%
- Huishoudens met kinderen
- 36%
Woningen in Didam
Cijfers voor postcodegebied 6942
- Woningen voor 1945
- 8%
- Woningen tussen 1945 en 1965
- 13%
- Woningen tussen 1965 en 1975
- 23%
- Woningen tussen 1975 en 1985
- 10%
- Woningen tussen 1985 en 1995
- 20%
Woningen in Didam
Cijfers voor postcodegebied 6942
- Woningen tussen 1995 en 2005
- 11%
- Woningen tussen 2005 en 2015
- 9%
- Woningen na 2015
- 6%
- Huurwoningen
- 40%
- Koopwoningen
- 60%
Overige in Didam
Cijfers voor postcodegebied 6942
- Gemiddelde WOZ waarde
- € 216.000,-
- Personen onder de 65 met uitkering
- 8%
Overige in Didam
Cijfers voor postcodegebied 6942
- Adressen per km²
- 1018
- Stedelijkheid (schaal 1 op 5)
- 60%
Korte feiten over Didam
Didam (Liemers: Diem) is een Nederlandse plaats in de gemeente Montferland, provincie Gelderland, regio Liemers. Didam was tot 1 januari 2005 een zelfstandige gemeente, maar ging daarna samen met Bergh op in de nieuw gevormde gemeente Montferland.
Met Maurice
Indien u vragen heeft of u wilt een bezichtiging inplannen, dan kunt u gebruik maken van het formulier hiernaast. Er zal daarna op korte termijn contact met u worden opgenomen.
Contact opnemen
Met Maurice en Birgit haal je méér makelaar in huis!
Wij zijn Maurice en Birgit, jouw lokale makelaarskoppel dat zich inzet voor een succesvolle én persoonlijke verkoop van je huis. Wij geloven dat mensen uiteindelijk huizen van mensen kopen. Daarom nemen we echt de tijd voor jou en voor de kijkers van jouw huis. Zo vinden we samen de perfecte match!
Waar wij voor staan
Echte aandacht, geen loze beloftes:
We luisteren naar wat jij belangrijk vindt, denken met je mee en houden altijd rekening met jouw situatie. Zo creëren we een verkoopproces dat prettig voelt van de eerste kennismaking tot de sleuteloverdracht. En natuurlijk zijn we er daarna ook nog voor je.
Nieuwste reviews
-
Wijnkersstraat 77
Zeer tevreden over de service Maurice en Birgit. De gastvrijheid en de communicatie zowel naar ons als naar de (potentiële) kopers beviel su...
-
Joubertstraat 108
Maurice en Birgit zijn hele fijne mensen om mee samen te werken. Ze doen een stapje extra, en hebben veel persoonlijke aandacht voor zowel v...
-
van Oldenbarneveltstraat 14 A
Ik ben erg tevreden met het persoonlijke en vriendelijke contact. Maurice was makkelijk en snel te bereiken en altijd beschikbaar voor alle...